Kontakt: +49 40 22739781
Über uns
Das „Haus Lankau“ existiert seit 1952. Es ist seitdem immer wieder ausgebaut und modernisiert worden. Es bietet Platz für bis zu drei Gruppen oder Schulklassen, die getrennt untergebracht werden können. Das „Haus 1“ ist mit elf 4-Bett- und einem 7-Bett-Zimmer mit Dusche und WC sowie drei Einzel- und zwei Doppelzimmern, ebenfalls mit Dusche und WC, ausgestattet. Dazu gehören auch drei Tagungsräume, einer hat einen gemütlichen Wintergarten. Das „Haus 2“ ist 1998 fertiggestellt worden und hat 6-Bett-Zimmer mit Dusche und WC.
Drei Gründe für Ihre Fahrt nach Lankau

Modernes Haus mit mehrheitlich 4-Bett-Zimmern mit Dusche und WC
Wir haben unser Haus stets weiterentwickelt. Neben großen Schlafräumen für die Kleinen haben wir auch 4-Bett-Zimmer für Ihre Familienfreizeit und Fortbildungsangebote.

In der Nähe von Hamburg mitten in der Natur am Elbe-Lübeck-Kanal
Ihre Reise in den Norden. Mitten in der Natur und zentral zu vielen Interessanten Ausflugszielen: Hamburg, Ostsee, Mölln, Ratzeburg, Lübeck – kommen Sie nach Lankau und entdecken Sie Norddeutschland.

Bis zu drei Schulklassen können gleichzeitig unser Haus besuchen
Wir haben drei Flure, die wir jeweils an unterschiedliche Gruppen vergeben können oder aber, drei Parallel-Klassen reisen gemeinsam an und haben dann das ganze Haus komplett für sich.
Eine kleine Tour durch unser Schullandheim
Auf unserem YouTube Kanal sind noch diverse Erklärfilme zum Haus Lankau zu finden.
Das Schullandheim für drei Klassen gleichzeitig
4-Bett-Zimmer
Wir haben im Haus elf 4-Bett-Zimmer mit eigener Nasszelle (Dusche und WC).
Mehrbett-Zimmer
Gerade für die kleinen Gäste ist ein Mehrbettzimmer eine reines Abenteuer. Hier gibt es viel Spass während des Aufenthalts.
Betreuer-Zimmer
Es stehen mehrere Betreuerzimmer als Einzel- oder Doppelzimmer zur Verfügung.
Lehrerzimmer
Alle Lehrkräften und Betreuer:innen können ein modernes gemütliches Lehrerzimmer nutzen. Es verfügt über einen Wasserkocher, einen Kühlschrank, Becher und Gläser, einen kleinen Schreibtisch.
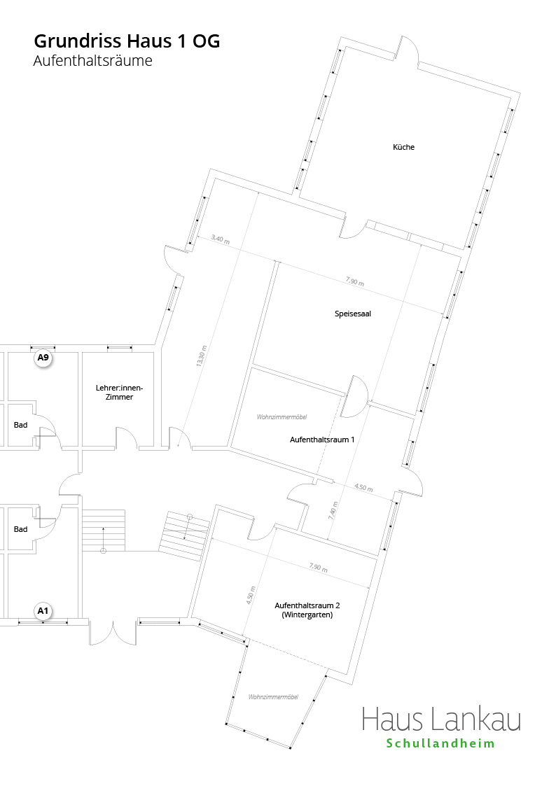
Aufenthaltsräume
Im Schullandheim befinden sich mehrere gemütliche Aufenthalts- und Speiseräume – in denen man zum Beispiel auch gut Seminare abhalten kann.
Selbstversorgerküche
In unserem Haus 2 können sich Gruppen bis 25 Personen selbst versorgen und so den Aufenthalt total individuell gestalten.
Zimmeraufteilung

Planen Sie Ihren Aufenthalt
Optimal planen um am Anreisetag das Chaos klein zu halten! Sehen Sie unsere Grundrisse der zwei Flure. Sie können die Pläne als PDF herunterladen und entsprechend am PC ausfüllen.
Grundriss Haus 1 OG – Flur A
Grundriss Haus 1 UG – Flur B
Grundriss Haus 2 OG – Flur C
Grundriss Haus 2 UG – Flur D
Häuser, Gruppen- und Speiseräume

Übersicht: Gruppenräume
In Haus A/B befinden sich zwei Gruppenräume, in denen es jeweils einen Bereich mit Stühlen und Tischen gibt. Zusätzlich und räumlich etwas abtrennt befindet sich in dem einen Gruppenraum eine große bequeme Wohnzimmerlandschaft und in dem anderen Gruppenraum ein gemütlicher Wintergartenbereich mit vielen Pflanzen.
Im Haus C/D befindet sich der größte unserer Tagesräume mit vielen Sitzmöglichkeiten und mit einem anliegenden Wintergarten, von dem man über eine Terrasse direkt zum Außengelände gelangt. Dieser große Raum, in dem auch ein Klavier steht, bietet sich entsprechend für Chor- und Musikproben an.
Die großzügigen Essensräume gehen ineinander über und bieten Platz für zwei Gruppen. Bei einer Belegung von mehr als 60 Personen, kann auch noch der Sitzbereich des angrenzenden Gruppenraumes zum Essen genutzt werden.

Lehrer:innenzimmer
Alle Lehrkräften und Betreuer:innen können ein modernes gemütliches Lehrerzimmer nutzen. Es verfügt über eine Spüle, einen Wasserkocher, einen Kühlschrank, Becher und Gläser, einen kleinen Schreibtisch sowie über eine Waschmaschine und einen Trockner mit Münzeinwurf. Im Lehrerzimmer befinden sich zudem eine umfangreiche DVD-Sammlung und Bücher mit Geschichten von Till Eulenspiegel zum Ausleihen. Zudem liegen verschiedene Informationen und Prospekte aus Mölln und Ratzeburg aus.

Selbstversorger-Küche
Die Selbstversorger-Küche kann von den Selbstversorger-Gruppen kostenfrei genutzt werden. Über eine Treppe gelangt man zur Galerie, die Platz für maximal 15-20 Personen bietet. Bei etwas größeren Gruppen kann zum Essen der Außenbereich sowie der große Tagesraum im Flurbereich D genutzt werden.
Die Selbstversorger-Küche muss bei der Abreise in einem ordentlichen, besenreinen Zustand hinterlassen werden. In den Schränken befinden sich Fotos, wo die Küchengegenstände hingehören.
Spannende Aufenthalte in Lankau

Übersicht: Aktivitäten
Unser Schullandheim liegt idyllisch am Elbe-Lübeck-Kanal und man kann dort ungestört unser weitläufiges Gelände nutzen. Wir haben viele Möglichkeiten geschaffen, damit Sie Ihren Aufenthalt abwechslungsreich gestalten können.
Aktivitäten im Gelände
Auf unserem großen Schullandheim-Gelände haben wir viele Möglichkeiten geschaffen, damit Ihr Aufenthalt in Lankau ein einmaliges Erlebnis wird, dass in Erinnerung bleibt.
Aktivitäten auf dem Wasser
Mit unseren 2022 neu angeschafften, zertifizierten Mannschafts-Kanadiern können Sie mit Ihrer Gruppe auf dem Elbe-Lübeck-Kanal ein tolles Abenteuer erleben.
Die lange Geschichte unseres Schullandheims
Seit vielen Jahren haben uns Schulklassen besucht – die Klassen sind in den Anfängen mit der Bahn und dann zu Fuss zu uns gekommen. Hier ein paar Einblicke in vergangene Episoden.
(Hinter den Bildern sind weitere Bilder in einem Lightroom gespeichert.)
Die 50er Jahre
Klein fing es an! Und mit einer schönen Aussicht auf den Kanal.
Die 60er Jahre
Das Haus wurde vergrößert und auch das Gelände wurde für die Gäste hergerichtet.
Die 70er Jahre
Inzwischen sind viele Bäume gewachsen und viele Gäste haben einen wunderschönen Aufenthalt in Lankau.
Die 80er Jahre
Das Haus wurde immer weiter ausgebaut und modernisiert. Auch damals war der Kanal ein Highlight während des Aufenthalts.
Die 90er Jahre
Weitere Anbauten, wie der Wintergarten, geben den Gruppen schöne Möglichkeiten den Tag zu genießen.
Let’s get startet




